Модульные здания от компании СИАН
Мы производим модульные здания разных модификаций: от кладовой до строительного офиса, от гостевого дома до полностью жилого здания. Время изготовления: от 2 недель (в зависимости от типа отделки и размера).
Вы можете создавать помещения, оформлять их по своему усмотрению и перемещать на другое место использования.
Наши модульные здания — это лучшие решения как для временного, так и для постоянного пользования.
Каждое здание может быть обустроено перегородками, сантехническими и электро-выводами.
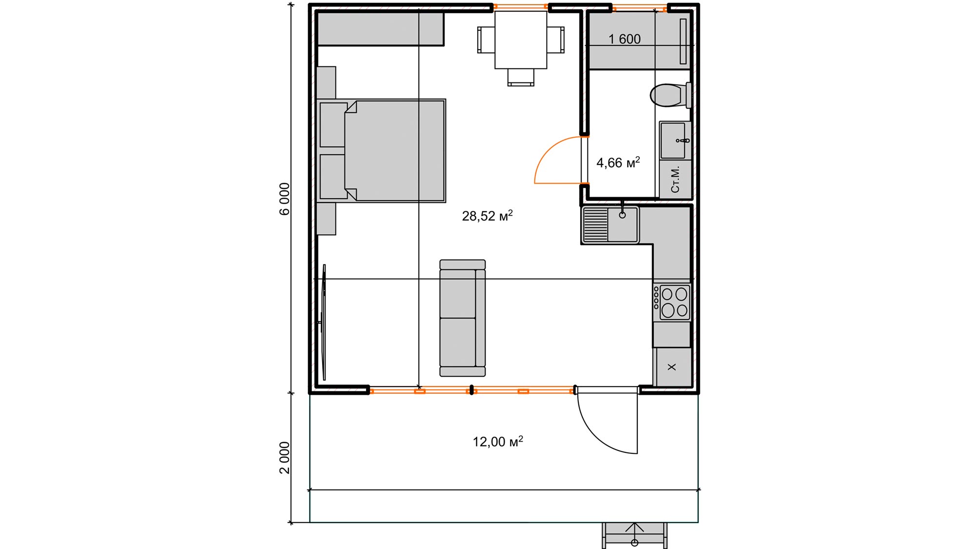
ДОМ-2
Площадь модуля 30.52
Пятно застройки 0,42 сотки
Каждое здание состоит из:
- Металлопрофиль – 0,45 мм
- Каркас из бруса 100х50мм
- Круговое утепление пенопластом -10 см
- Внутренняя обшивка – ОСБ
- Внешняя обшивка – МДФ панели
- Потолок – натяжной, белый сатин
- Напольное покрытие – кварцвинил
- Окно – однокамерный стеклопакет
- Дверь – металлическая либо пластиковая
ДОМ-3
Площадь модуля 33,64
Пятно застройки 0,48 сотки
Каждое здание состоит из:
- Металлопрофиль – 0,45 мм
- Каркас из бруса 100х50мм
- Круговое утепление пенопластом -10 см
- Внутренняя обшивка – ОСБ
- Внешняя обшивка – МДФ панели
- Потолок – натяжной, белый сатин
- Напольное покрытие – кварцвинил
- Окно – однокамерный стеклопакет
- Дверь – металлическая либо пластиковая
МОД-1
Площадь модуля 16,24
Площадь застройки 0,18 соток
Каждое здание состоит из:
- Металлопрофиль – 0,45 мм
- Каркас из бруса 100х50мм
- Круговое утепление пенопластом -10 см
- Обшивка – ОСБ
- Окно – однокамерный стеклопакет
- Дверь – металлическая либо пластиковая
Каждое здание состоит из:
- Металлопрофиль – 0,45 мм
- Каркас из бруса 100х50мм
- Круговое утепление пенопластом -10 см
- Внутренняя обшивка – ОСБ
- Внешняя обшивка – МДФ панели
- Потолок – натяжной, белый сатин
- Напольное покрытие – кварцвинил
- Окно – однокамерный стеклопакет
- Дверь – металлическая либо пластиковая
МОД-2
Площадь модуля 16,24
Площадь застройки 0,18 соток
Каждое здание состоит из:
- Металлопрофиль – 0,45 мм
- Каркас из бруса 100х50мм
- Круговое утепление пенопластом -10 см
- Обшивка – ОСБ
- Окно – однокамерный стеклопакет
- Дверь – металлическая либо пластиковая
Каждое здание состоит из:
- Металлопрофиль – 0,45 мм
- Каркас из бруса 100х50мм
- Круговое утепление пенопластом -10 см
- Внутренняя обшивка – ОСБ
- Внешняя обшивка – МДФ панели
- Потолок – натяжной, белый сатин
- Напольное покрытие – кварцвинил
- Окно – однокамерный стеклопакет
- Дверь – металлическая либо пластиковая
МОД-3
Площадь модуля 16,24
Площадь застройки 0,18 соток
Каждое здание состоит из:
- Металлопрофиль – 0,45 мм
- Каркас из бруса 100х50мм
- Круговое утепление пенопластом -10 см
- Обшивка – ОСБ
- Окно – однокамерный стеклопакет
- Дверь – металлическая либо пластиковая
Каждое здание состоит из:
- Металлопрофиль – 0,45 мм
- Каркас из бруса 100х50мм
- Круговое утепление пенопластом -10 см
- Внутренняя обшивка – ОСБ
- Внешняя обшивка – МДФ панели
- Потолок – натяжной, белый сатин
- Напольное покрытие – кварцвинил
- Окно – однокамерный стеклопакет
- Дверь – металлическая либо пластиковая
МОД-4
Площадь модуля 5,04
Площадь застройки 0,05 соток
Каждое здание состоит из:
- Металлопрофиль – 0,45 мм
- Каркас из бруса 100х50мм
- Круговое утепление пенопластом -10 см
- Обшивка – ОСБ
- Окно – однокамерный стеклопакет
- Дверь – металлическая либо пластиковая
Выбор цветовой гаммы
Вы сами сможете выбрать цветовую гамму внутренней и внешней отделок своего модульного здания.
Контакты
Главный офис продаж
Республика Крым, Евпатория,
проспект Ленина, 51/50 помещение 14
8 (800) 350-13-14
- бесплатный, многоканальный
Пн-Пт 8:00-22:00 (без обеда)
office@sian82.ru














